热线电话:400-668-9628

它将是全球第一高住宅楼,全美第二高楼…

来源:http://mp.weixin.qq.com/s?__biz=MjM5OTY5NjMyMQ==&mid=2650388957&idx=4&sn=2a1af9c2c36a69b859318250dc430ad0&chksm=bf3a9b73884d12651ffecfd2112e2ca5804c518800b46ec860fc1c678254ff4bcca7050f1ca6&mpshare=1&scene=1&srcid=07313Gge4qfWTRpVsxhNqPJq#rd作者:北美购房网时间:2017/7/31

北美购房网信二维码
扫一扫,随时看

 

放眼全球,曼哈顿是世界上富豪、企业家最多的地方,这是个弹丸之地,集中了无数人在此追逐梦想。如此成功的你,不想也在这儿拥有自己的一方天地吗?现在,Central park tower——纽约(房市)最高的住宅楼,也是最奢华的住宅楼,其开发商已经获得公寓预售的发售批准,静待您的关注……

 

01

项目详情

 

项目地点:纽约曼哈顿中城

建筑设计:Adrian Smith & Gordon Gill ,SMI USA

开发商:Extell development Extell开发商

项目楼高:95层,1,550英尺

销售价格:154万美元起

房屋面积:569-16,000平尺(70-1,742平米)

房屋户型:豪华公寓,复式阁楼,顶楼三层复式(仅1套)

发售时间:2017年下半年

交房时间:2019年

建筑设施:空中室内及室外游泳池,9000平尺的空中露台花园,健身房,SPA桑拿、按摩池,雪茄房,家庭影院及游戏室

02

所在位置

 

➤项目位于中央公园西北角,临近第五大道和哥伦布广场。这是个自然,娱乐,餐饮,艺术,教育资源集中的区域。

 

03

项目亮点

 

 

 
 

空中楼王

 
 

 

这是美国第二高的大楼,纽约最高的建筑,同时也是现今全世界最高的住宅楼

 

 
 

生活便利

 
 

 

集豪华住宅、豪华会所、高级百货商场、高级俱乐部于一身。

 

 
 

中央公园景观

 
 

 

项目临近中央公园,大部分居民有直接的中央公园景观。

 

 
 

地理位置优越

 
 

 

项目距离中央公园,哥伦布广场几步之遥,被数家米其林二三星餐厅包围,是集时尚,商业,艺术,戏剧,历史,教育和自然结合在一起的黄金地点。

 

04

开发商简介

 

 

 

 

 

 Extell公司是纽约实力最强的开发商之一。公司创建于1989年,是美国曼哈顿知名的商业、筑造、零售、酒店等开发商,也是最早做投资移民的开发商,目前是纽约曼哈顿最大的土地银行持有者,不论是上东区、时代广场、中央商务区、中城区都有它所建设开发的项目和楼盘,到目前为止,已经成功建造了超过2亿平方英尺面积的建筑作品,多个高端知名地产项目曾获得国际大奖。

成立至今,公司开发的公寓和酒店项目从无失败,甚至在美国两次经济房产泡沫危机中,其开发的楼盘也未受到任何影响,住宅楼在金融危机的时候开盘,仍然在短时间内被一抢而空,这也从侧面说明了市场非常认可该公司开发的楼盘。

 

05

建筑师介绍

 

 

 

位于芝加哥的建筑和设计公司Adrian Smith + Gordon Gill(AS + GG)是一家致力于设计和开发高能效和可持续发展建筑的设计公司。 AS + GG为国际客户提供世界各地项目的设计, 这些设计的主要用途是包括民用、商业、文化、酒店、住宅和综合使用。 AS + GG还专门从事超高层摩天大楼设计,如将于2020年完成世界最高的建筑——吉达塔。

 

06

项目景观图

 

 

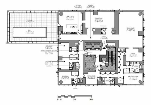
07

户型图

 

 

 

 

 

上面一套带泳池的10,000平尺(1,089平方米)的公寓价格为9500万美元

 

 

 

至少有26个公寓每平尺要价9,000美元以上,所有公寓每平尺均价约7,106美元

 

08

周边环境

 

 

在这里,足不出户,就能欣赏中央公园的美景。中央公园是纽约这座繁华都市中一片静谧休闲之地。园内分布着大大小小的湖和森林,设有动物园、运动场所及游乐设施,是休闲和放松的好地方。

 

项目临近第五大道,第五大道是美国纽约市曼哈顿一条重要的南北向干道,位于曼哈顿岛的中心地带。从洛克菲勒中心到第58街的路段上,布满了蒂芙尼,梵克雅宝,路易威登,爱马仕,莫罗伯拉尼克等奢侈品精品店。

 

Le Bernardin  、La Grenouille 、The Modern等星级餐厅也在附近, 出门就可以享受顶级美食。附近的华纳中心是一个超级购物中心,Thomas Keller’s Per Se是他们最有名的中央公园观景餐厅,底层Whole Food备受纽约客追捧。

 

66街的林肯表演中心也在不远处,大都会歌剧院是大都会歌剧团及美国芭蕾舞剧团的所在地,也是林肯表演中心最为耀眼的建筑。热爱艺术的人士一定可以在这里欣赏到美轮美奂的艺术盛宴。

 

项目旁边就是被誉为音乐家的摇篮的茱莉亚音乐学院。步行可至密歇根大学,福德汉姆大学,都柏林大学学院等世界一流的高等学府。

 

 

 

本网注明“来源:北美购房网”的所有作品,版权均属于北美购房网,未经本网授权不得转载、摘编或利用其它方式使用上述作品。违反上述声明者,本网将追究其相关法律责任。 凡本网注明“来源:XXX(非北美购房网)”的作品,均转载自其它媒体,转载目的在于传递更多信息,并不代表本网赞同其观点和对其真实性负责。

标签:它将是全球第一高住宅楼,全美第二高楼…

上一篇:美国人比中国人更爱租房? 美国租房什... 下一篇:纽约长岛汉普顿,首个“能打球 更能安...

推荐阅读

最新资讯